Search Properties

Sparkenhoe, Newbold Verdon, LE9 9LU - Investment Portfolio

Newbold Verdon

£1,200,000

Department:
Sales
Reference No.:
34330323
Type:
Detached House
Availability:
For Sale
Bedrooms:
3
Bathrooms:
3
Receptions:
1
Location:
Newbold Verdon
Price:
£1,200,000

Property features

  • Ready Made Investment Portfolio
  • Four Properties
  • Newbold Verdon Location
  • Two Semi's & Two Detached Properties
  • Total Of 13 Bedrooms
  • Current Income £51,000 PA
  • Fantastic Opportunity
  • Call For More Information
  • EPC Grade : TBC - Freehold

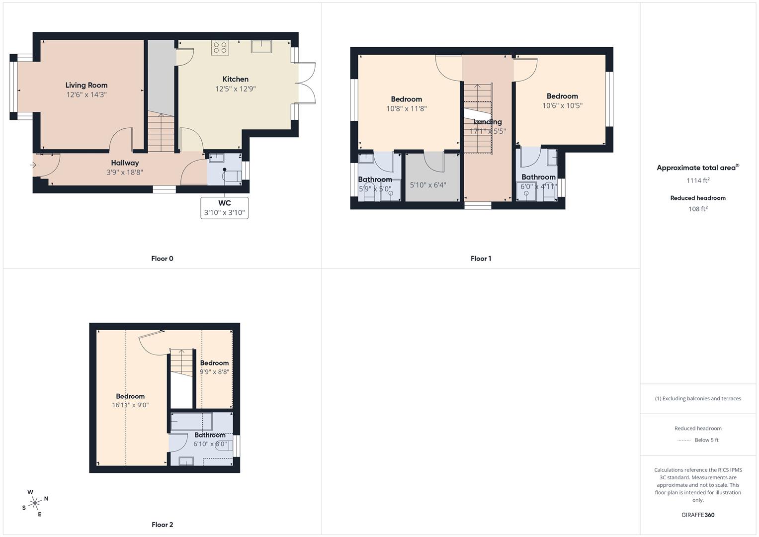
Floor Plans

Summary

Looking for a ready made investment property, look no further.

We are delighted to bring to market this portfolio of four investment properties which comes with an immediate income of £51,000 PA Gross.

The properties are located on Sparkenhoe and Mill Lane, Newbold Verdon.

In total, the portfolio comprises 13 bedrooms spread across four well-presented homes, a three-bedroom semi-detached, a four-bedroom semi-detached, and two three-bedroom detached houses. Each property benefits from off-road parking, gas central heating, and UPVC double-glazed windows and doors.

Call for more information, copies of all AST's and proof of income to be provided to the buyer(s) once a sale price has been agreed during the conveyance certificate.

Details

Tenure
Freehold

Council Tax Band
Hinkley & Bosworth

Council Tax Band : B & C

Viewings
Please contact David, Julie or Henry at our office to arrange your viewing.

All viewings are by appointment only.


Call us today to book your appointment.

Services
Mains water, gas and electricity are available to the property but none of these, nor any of the appliances attached thereto, have been tested by us, who gives no warranties as to their condition or working order. Telephone subject to suppliers regulations.

Valuations
If you have a property to sell please contact us to arrange your free valuation.

We can be contacted Monday - Friday 9am - 5pm or Saturdays 9am - 4pm.

Fixtures, Fittings & Appliances
The mention of any fixtures, fittings and/or appliances does not imply they are in full efficient working order.

Photographs
Photographs are reproduced for general information and it cannot be inferred that any item shown is included in the sale.

Measurements
Every care has been taken to reflect the true dimensions of this property but they should be treated as approximate and for general guidance only.

Money Laundering
Where an offer is successfully put forward we are obliged by law to ask the prospective purchaser for confirmation of their identity. This will include production of their passport or driving licence and a recent utility bill to prove residence. This evidence will be required prior to solicitors being instructed.

General Note
These particulars, whilst believed to be accurate are set out as a general outline only for guidance and do not constitute any part of an offer or contract. Intending purchasers should not rely on these Particulars of Sale as statements of representation of fact, but must satisfy themselves by inspection or otherwise as to their accuracy. No person in this agent's employment has the authority to make or give any representation or warranty in respect of the property.

Hours Of Business
Our office is open Monday to Friday 9am - 5.30pm

Saturday 10am - 3:30pm.

EPC

Request Further Details

Or arrange a viewing